As a leading structural engineering consultancy based in the United Kingdom, KA Engineering Group provides end-to-end solutions for general structures of every scale.
Our designs ensure full compliance with all local building codes and industry standards while maximising the structural integrity and longevity of your asset.
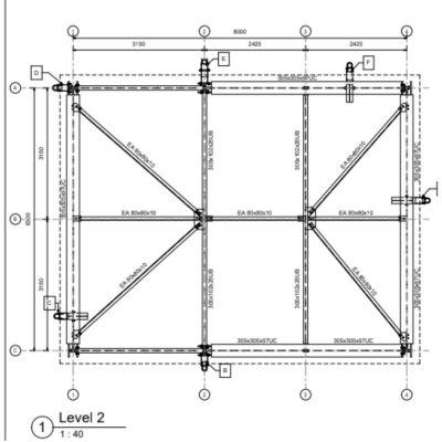
Structural analysis and design for residential, commercial, and high-rise buildings.
Structural analysis and design for roof-mounted and ground-mounted solar systems.
Inspection and reinforcement design for aging or damaged roof trusses and flat roofs
Support for HVAC units, plant equipment, heavy machinery in existing structures
We discuss your project goals, scope and budget to define the most efficient structural strategy
Our chartered engineers conduct thorough analysis using advanced software for efficient designs
We provide streamlined drawings and calculations for pricing and building control approval
We provide support during your construction phase, on-site inspections and expert guidance.
Qualified experts you can trust
We deliver on time, everytime
Realistic & workable outcomes
Quality service at optimal cost
Transparent, timely & accurate
Aligned with all standards






Antenna masts and communication infrastructure
Expert solutions to extend operational life of wind turbines
Advanced aerial surveying and digital twin creation for site analysis and modelling
Let’s get in touch
Let’s discuss how our engineering expertise can bring your vision to life. Get in touch with our team today.